Yachts
Astondoa
Azimut
Benetti Yachts
Bluegame
Custom Line
Pirelli
Riva
Sanlorenzo
110 Century
Century
100 Century
AS8
As
Ax8
Ax
66 Flybridge
Flybridge
677 Coupe
Coupe
As5
377 Coupe
Grande 44M
Grande Trideck
Grande 36M
Grande 32M
Magellano 30M
Grande 30M
S10
Grande 27M
Azimut Magellano 27M
Grande 26M
Grande 25M
Seadeck 9
Magellano 25M
Fly 82
S8
Fly 78
Fly 72
Seadeck 7
S7
Fly 68
Magellano 66
Fly 62
S6
Magellano 60
Fly 60
Seadeck 6
Fly 53
Atlantis 51
Verve 48
Atlantis 45
Verve 42
B.Century 75M
B.Now 72M Oasis Deck
B.Century 68M
B.Now 67M Oasis Deck
B.Loft 65M
B.Century 62M
B.Now 60M Oasis Deck
B.Loft 58M
B.Yond 57M
B.Century 55M
B.Century 55M Four-Decks
B.Now 52M
Motopanfilo 45M
Class 44M
Oasis 42M
B.Yond 40M
Motopanfilo 37M
Oasis 34M
BG74
BGM75
BGX73
BGX63
BG54
BGF45
BG42
Aluminium Alloy 50
Saetta 140'
Navetta 42
Saetta 128'
Navetta 38
Saetta 120'
Navetta 35
Saetta 106'
Navetta 30
Navetta 33
J29
Tenders
PIRELLI 50
Speedboats
PIRELLI 35
PIRELLI 30
J50
47
J45
PIRELLI 42
J39
X400
X350
J33
112' Dolcevita Super New
FLYBRIDGE
102' Corsaro Super
90' Argo
88' Folgore
SPORTFLY
82' Diva
76' Bahamas Super
OPEN
76' Perseo Super
66' Ribelle
68' Diable
56' Rivale
58' Capri New
Dolceriva
Rivamare
Cento New
Aquriva Special New
El-Iseo
Iseo Super New
130' Bellissima
54 METRI
NEW PROJECTS
SD132
SL120 Asymmetric
SL Range
SD118
SD Range
SX120
SX
SL110 Asymmetric
SP110
SX100
SL96 Asymmetric
SD96
SP92
SP
SL90 Asymmetric
SD90
SX88
SL86 Asymmetric
SHE
SX76
Charter
Acheter maintenant
Collection de yachts NFT
YachtFi
NFT Yachts Collection
Actualités
Configurateur
Contact
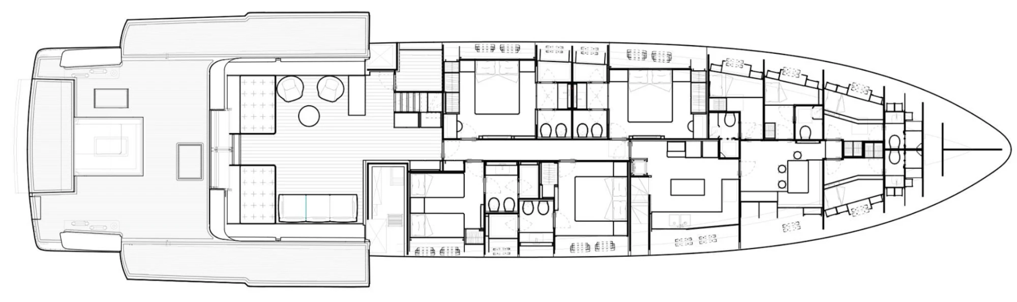
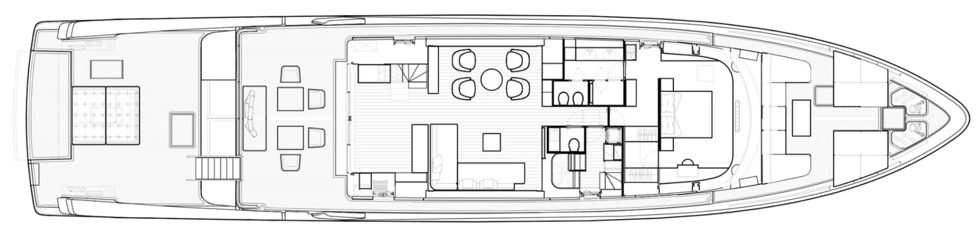
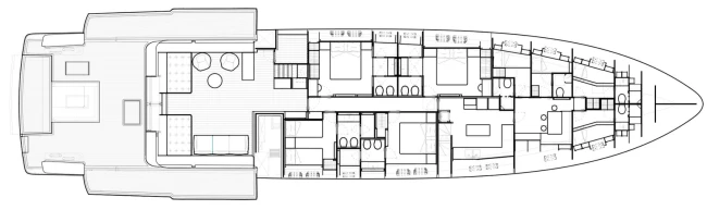
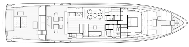
Sanlorenzo SX
La précision dans chaque détail
35.58mm
Longueur hors tout
23 knotskt
Vitesse maximale
kt
Vitesse de croisière
pax
Personnes à bord
Détails essentiels
23.75m mètres
6.60m mètres
Largeur maximale
1.65m mètres
Tirant d’eau
litres
Capacité du réservoir de carburant
Capacité du réservoir d’eau
22 knots nœuds
nœuds
26.70m mètres
7.20m mètres
1.70m mètres
23 knots nœuds
30.53m mètres
7.60m mètres
2.00m mètres
15800L litres